| The low-flow destinations and items in the red box below are placed in the automated case warehouse and shipped mixed per destination. |
![]() |
![]() |
| Case packaging and number of items stored |
![]() |
|
| Operation of the automated case warehouse |
![]() |
The incoming case is transferred from the in-storage conveyor, transported to the shelf entrance, stored on the shelf , moved to the shelf entrance where the outgoing case is located, the case is transferred and transported, the case is lowered onto the in-storage conveyor, and then transferred to the outgoing shelf conveyor by a vertical transport machine.The above in-storage and outgoing processes can be performed 50-60 times per hour. |
| Flat layout |

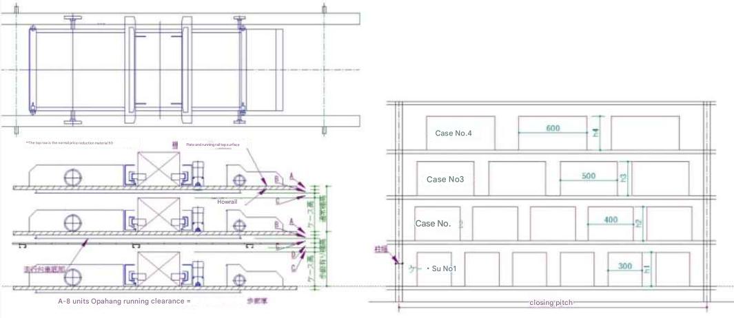
| Traveling cart and shelf opening height and opening width and number of cases stored Opening pitch: 2710 mm, number of cases stored per opening: 6 cases for 300 mm wide, 5 cases for 400 mm wide, 4 cases for 500 mm wide, 3 cases for 600 mm wide |
![]() |
| Dimensions can be changed |
![]() |
The running carriage is designed to overhang below the rails, so be careful of the dimensions of the entrance with and without a walkway. Tera settings can be changed. |